Description

JORDAAN |unfurnished 2 bedroom apartment | 85 m2 | balcony 

** INTERESTED? **

Please respond to this listing (just click the "plan a viewing" button on this site), and leave a short tenant bio. We will then inform you by mail about the viewing possibility for next week. 

** NOT SUITABLE FOR SHARING ?/ NO GUARANTORS**

Under construction ....... at the moment the apartment is being painted and the floor gets a new finish before the start of the rental period. 
This complex has the typical Amsterdam warehouse feeling with its authentic beams and windows. 
Amazing view over the canal and located in a quiet part of the vibrant Jordaan. 

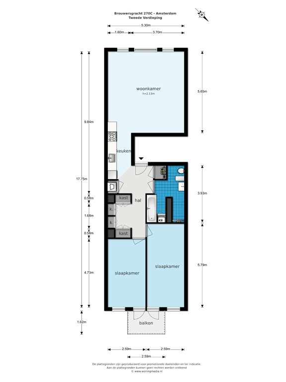
Lay out
You reach the fourth floor via a well maintained staircase that is wide for Amsterdam standards. In the hallway you have many built in wardrobes and a separate storage with washing machine connection. The bathroom is very well equipped with toilet, a separate walk in shower and separate bathtub. 
At the front you have the large and bright living room. The windows provide you with a mesmerizing view over the canal. The kitchen has all needed appliances, gas stove, refrigerator, dish washer, oven/microwave and a lot of storage. Although the kichen is open, the placement leaves the floorspace of the living room intact. 

At the back you find two large bedrooms (almost equal in size) and both have direct access to the terrace at the backside of the building. 

Location and accessibility
Situated in sought-after and bustling Jordaan Quarter in Amsterdam's city center, on a quiet stretch of Brouwersgracht.
A stone's throw from the well-known Saturday market on Noordermarkt. Within walking distance of a wide range of restaurants, delis, (organic) supermarkets, shops and art galleries.

Behind the apartment is vibrant Haarlemmerstraat, home to numerous restaurants, bars and shops. Relaxing Westerpark is also close-by.

Excellent accessibility by public transportation: Amsterdam Central Station is at walking distance. Bus lines: 18, 21, 22, 48 and 753. Trams: 1, 2, 3, 5, 13 and 17.

The specifics
- Service charges € 35 per month
- Deposit: 2 months' rent;
- Contract : indefinite
- Unfurnished
- Sharing is not allowed.
- Authentic beams 
- wooden floor newly sanded and finished 2025
- newly painted 2025
- curtains + lights
- Renovated to the highest standards
- Energylabel A

** INTERESTED? **

IT IS NOT POSSIBLE TO CALL OUR OFFICE. Please respond to this listing (just click the "plan a viewing" button on this site), and leave a short tenant bio. We will then inform you by mail about the viewing possibility.

To avoid housing discrimination:
- we have a clear and transparent selection procedure;
- we use non-discriminatory selection criteria;
- we will explain to the rejected prospective tenants why another tenant has been chosen.
Our protocol for allocation of rental properties to prospective tenants is placed on our website www.houseofrentals.nl in the footer.

DISCLAIMER This information has been compiled by us with the necessary care. However, no liability is accepted on our part for any incompleteness, inaccuracy or otherwise, or the consequences thereof. All specified sizes and surfaces are indicative.

Features